youtube
https://www.youtube.com/
x
https://x.com/
tiktok
https://www.tiktok.com/
pinterest
https://pinterest.com/
phone
(972)-571-9506
linkedin
https://linkedin.com/
address
Rockwall, Texas
company
Intuitive Interiors
instagram
https://www.instagram.com/intuitiveinteriorstx
google-reviews
share.google/1cFa3VXcSdisWYGJD
email
marciafoster@att.net
facebook
https://www.facebook.com/people/Intuitive-Interiors/61573744316025/
Residential

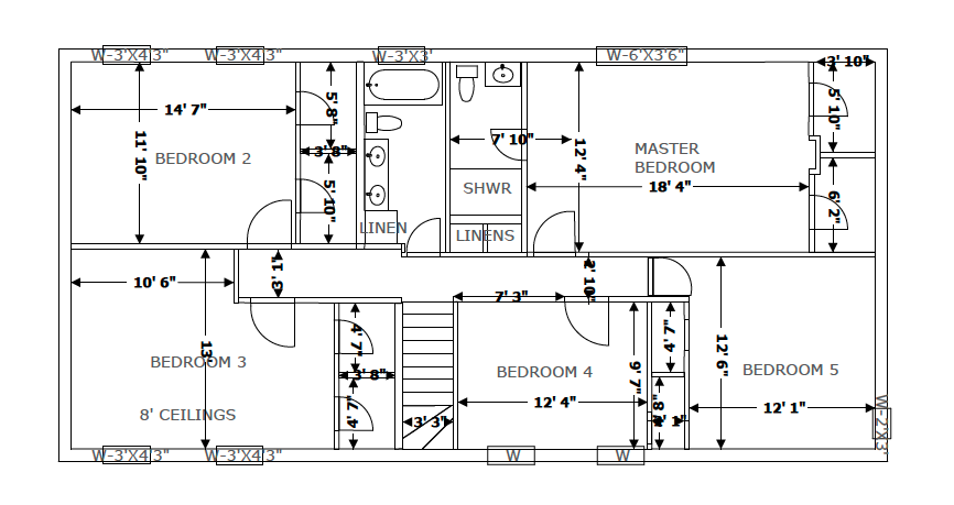
Richardson TX Permit Plans

A quick flip of this Richardson 5 bedroom remodel was approved by the city which allowed for a quick turnaround to get this property on the market by summer!
No items found.
Free Quote

Let's Create Your Dream Space

Contact us today for a free, no-obligation estimate on your painting project. We serve residential and commercial clients throughout Rockwall & Collin County

{{phone}}
{{phone}}
{{email}}
{{email}}
{{address}}
Submit
Thank you! Your submission has been received!
Oops! Something went wrong while submitting the form.