youtube
https://www.youtube.com/
x
https://x.com/
tiktok
https://www.tiktok.com/
pinterest
https://pinterest.com/
phone
(972)-571-9506
linkedin
https://linkedin.com/
address
Rockwall, Texas
company
Intuitive Interiors
instagram
https://www.instagram.com/intuitiveinteriorstx
google-reviews
share.google/1cFa3VXcSdisWYGJD
email
marciafoster@att.net
facebook
https://www.facebook.com/people/Intuitive-Interiors/61573744316025/
Residential

Lake Ray Hubbard TX Home Elevations

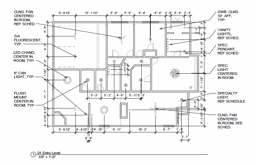
Plans are important for contractors, permits, HOA approval, and helping clients visualize the spaces to keep from having any miscommunication from the start. We offer plans direct to clients or to GC's!
No items found.
Free Quote

Let's Create Your Dream Space

Contact us today for a free, no-obligation estimate on your painting project. We serve residential and commercial clients throughout Rockwall & Collin County

{{phone}}
{{phone}}
{{email}}
{{email}}
{{address}}
Submit
Thank you! Your submission has been received!
Oops! Something went wrong while submitting the form.